Facebook
Épületek
A épület
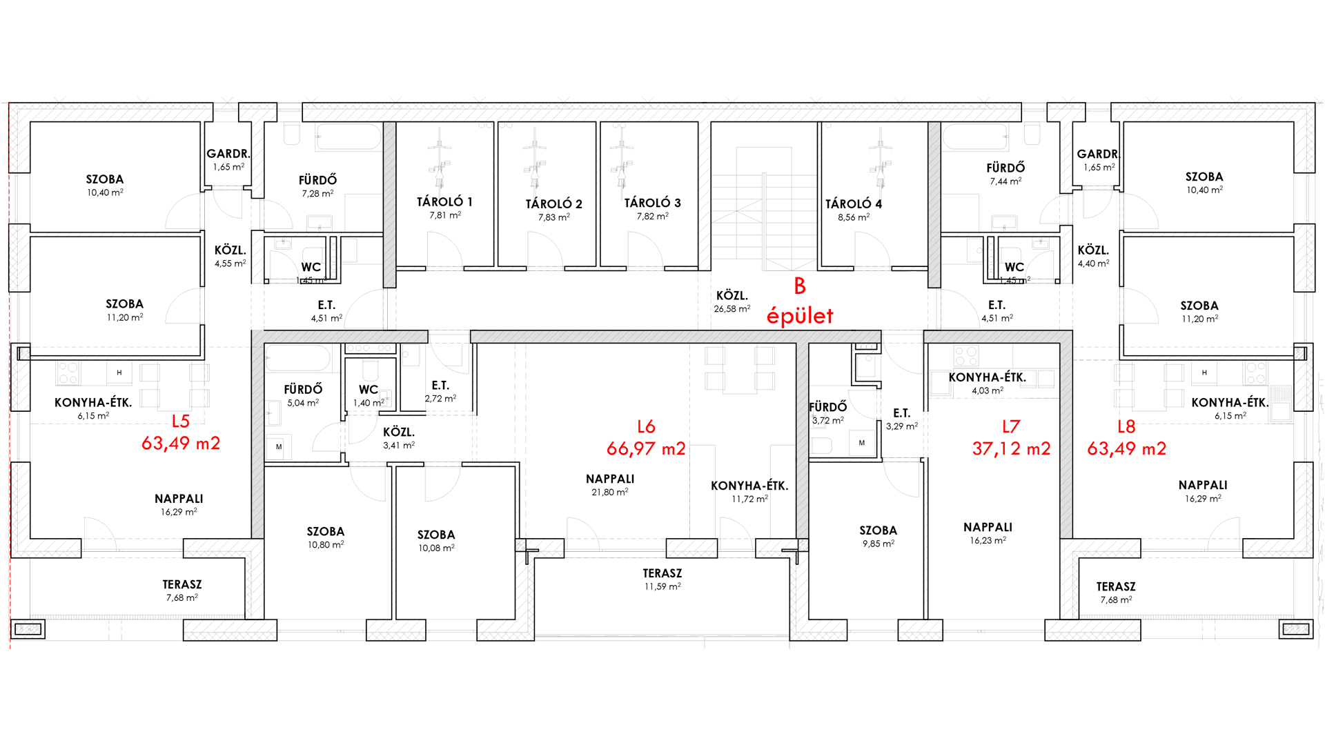
B épület
Kapcsolat
Hívjon minket
+36 70 455 6904
Írjon
info@falukoz.hu
Várjuk
Győrújbarát
Főoldal
Faluköz
Megközelítés
Generál kivitelező
Műszaki paraméterek
Lakásválasztó
Lakás lista
Tervdokumentáció
Kapcsolat
Emelet
vissza a főoldalra
A megtekintéséhez kérjük kattintson a kívánt lakásra!
Lakások
L5 Lakás 67,33 nm
eladva
L6 Lakás 72,77 nm
eladva
L7 Lakás 37,12 nm
eladva
L8 Lakás 67,33 nm
eladva