Facebook
Épületek
A épület
B épület
Kapcsolat
Hívjon minket
+36 70 455 6904
Írjon
info@falukoz.hu
Várjuk
Győrújbarát
Főoldal
Faluköz
Megközelítés
Generál kivitelező
Műszaki paraméterek
Lakásválasztó
Lakás lista
Tervdokumentáció
Kapcsolat
Tetőtér
vissza a főoldalra
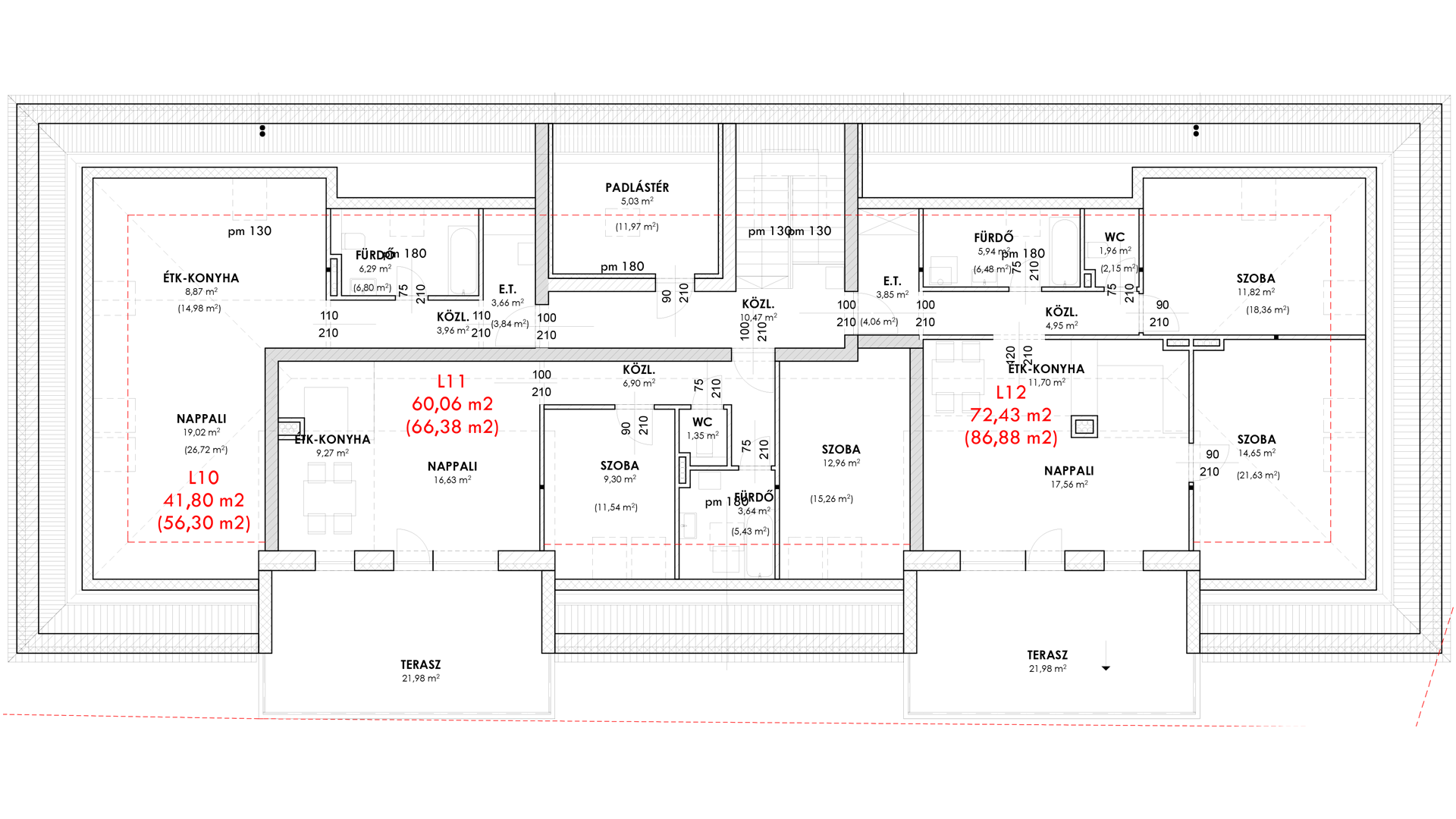
A megtekintéséhez kérjük kattintson a kívánt lakásra!
Lakások
L10 Lakás 49,05 nm
eladva
L11 Lakás 74,21 nm
eladva
L12 Lakás 90,65 nm
eladva