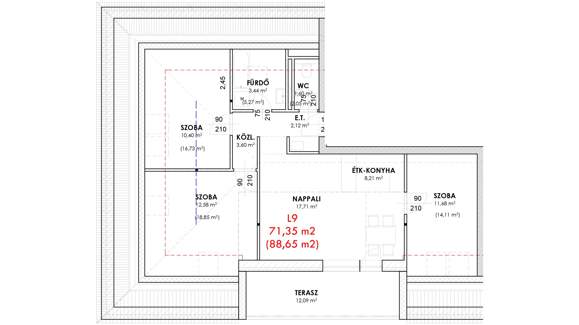
L9 Lakás
| Előtér | 2,12 m2 |
| Konyha-étkező | 8,21 m2 |
| Szoba | 11,68 m2 (14,11 m2) |
| Terasz | 12,09 m2 |
| Nappali | 17,71 m2 |
| Szoba | 12,58 m2 (18,85 m2) |
| Közlekedő | 3,60 m2 |
| Szoba | 10,40 m2 (16,73 m2) |
| Fürdő | 3,44 m2 (5,27 m2) |
| WC | 1,60 m2 (2,05 m2) |
| Közös tároló 2 tetőtéri lakáshoz | Σ 10,22 m2 |
| Lakás L9 | Σ 71,35 m2 (88,65 m2) + 12,09 m2 terasz |
Bruttó ár:
21 400 000 Ft
21 400 000 Ft
